图知网
搜索
首页
热门推荐
图片分类
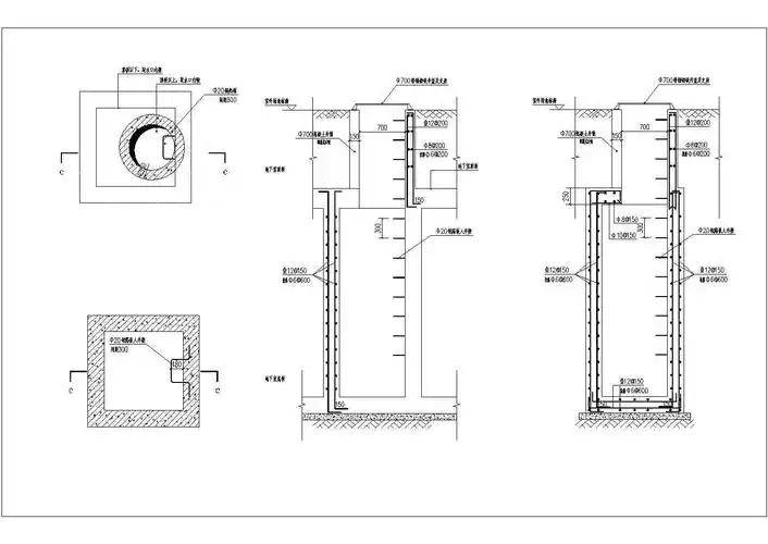
解读消防水池取水口井做法
下载原图
相关图片
消防水池取水口做法要点
消防水池取水口
大型室外消防取水口土建工程设计cad施工图
消防水池取水口
消防水池取水口
消防水池取水口做法
为你推荐
华晨宇生日大片##华晨宇花园小王子写真
造成小孩99%近视眼的元凶:为什么眼镜店平时一个顾客都没有,却不会
气质欧美长发女生背影
手抄报花边
脚被排钉扎了一个小口
水墨边框笔刷边框中国风边框古风水墨手绘油纸伞祥云线条祥云素材手绘
天秤座星座与森林景观剪影在美丽的星空与银河和后面的空间.
特斯拉21700锂电池大容量6200ma动力电动车充电宝代电瓶18650电池