图知网
搜索
首页
热门推荐
图片分类
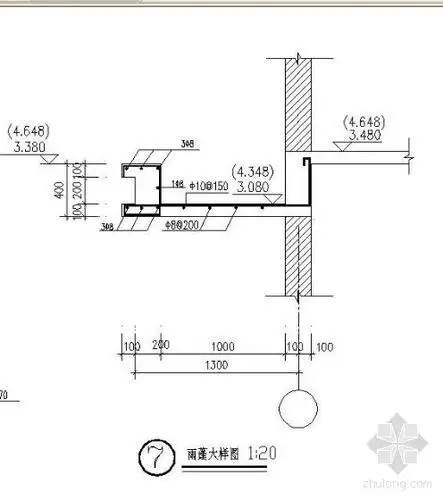
混凝土雨棚构造节点大样施工图cad
下载原图
相关图片
[分享]玻璃雨棚构造详图资料免费下载
商铺雨棚工程竣工图
钢结构玻璃雨篷铝板雨篷弧形驳接爪雨棚平立剖大样图
雨篷结构详图
[分享]铝板雨篷图集资料下载
雨蓬节点详图
为你推荐
孙莉丽的甜美风格写真
侧脑室穿刺的适应证
泰国蜈蚣丸 治咳嗽效果超赞_医疗健康其他_医疗健康
粉丝应援"有排面"的背后,是饭圈生意的糊涂账_海蒂
清新娇嫩养眼植物花卉图片桌面壁纸高清大图预览1920x1200_植物壁纸
德云头像丨热爱终抵岁月长,一起变成更好的人吧
停课不停学 在家快乐学 ——南街小学一年级美丽,有趣的拼组图形掠影
朝鲜男女比例曾达1比8,但为何我国禁止志愿军与朝鲜女性结婚?