图知网
搜索
首页
热门推荐
图片分类
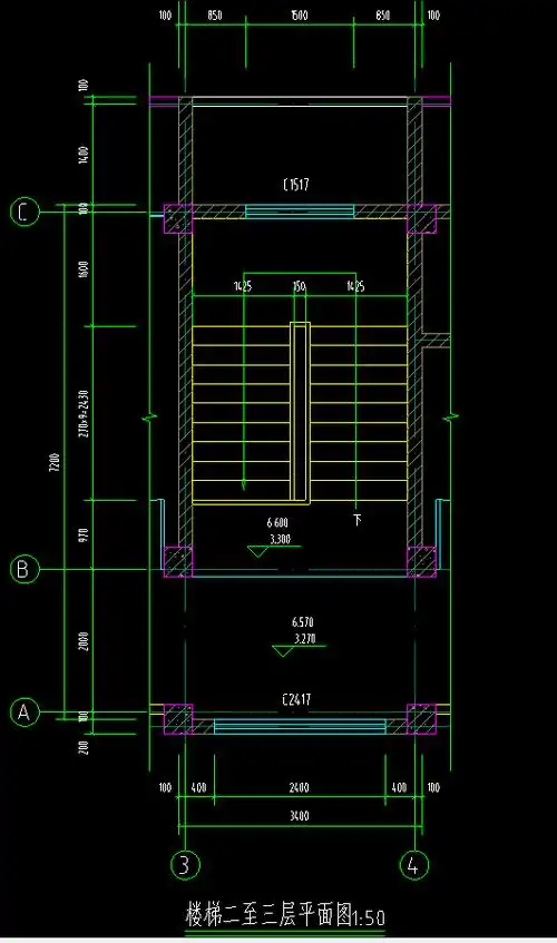
请问这个楼梯休息平台的长度是多少啊
下载原图
相关图片
楼梯休息平台的最小宽度
楼梯间休息平台宽度理解建筑专业
半自动促销复式别墅小阁楼伸缩楼梯钢木家用室内隐形折叠升降扶手
老师 楼梯投影面积要加上梯梁 楼梯休息平台吗?楼梯怎么计算面积?
4,对于室内楼梯,为了节省空间,经常还有不设休息平台的做法,就是把
了解楼梯间各楼层平台,休息平台面的标高:楼层平台标高分别为3m,6 m,9
为你推荐
芒果即将开播的3部电视剧每一部都有望成爆款你想追哪部
白色极简约扁平风商务新媒体海报背景图素材
韩国男士发箍女洗脸头箍发卡发夹潮男运动发带背头压发饰发捆头饰6
铁拳7 豹王大战清凉美女姐姐
无视安全等于零】昭通昆钢嘉华安全生产月员工子女儿童画作品展纪实
复方醋酸曲安奈德溶液安隆
automakers vow not to give up on weak-selling electrics
纯干货|多乐士乳胶漆色号 实拍图73无滤镜