图知网
搜索
首页
热门推荐
图片分类
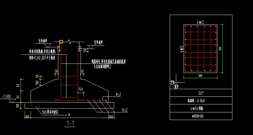
地基与基础的类型和构造培训讲义-岩土培训讲义-筑龙岩土工程论坛
下载原图
相关图片
独立基础工艺,算量,计价
请问有没有大佬帮我提供一下阶形独立基础的实物配筋图,谢谢-服务新干
独立基础绑钢筋,支模,浇筑全过程
柱子底标高设置独立基础底到层顶标高和柱子底标高设置基础底到基础顶
建筑施工技术之模板工程施工工艺-主体结构-筑龙建筑施工论坛
您好请问一下,独立基础上的柱也是用框架柱来定义吗,还有就是上面变窄
为你推荐
安以轩在《仙剑奇侠传》(上图)和《独孤天下》(下图)中饰演林月如
msp景品 综合 排球少年 乌野高中 日向翔阳
彝良县长陈祥彬到边远少数民族聚居区调研
原创漫展最有"味道"cos,全因衣服太紧,放个屁都散不出去!
马布里 starbury2球鞋
求几张女生哭着笑的动漫头像,不笑的也行,可以参考下图,我比较喜欢
朱自清春课文原文
p>维涅龙m2式冲锋枪由比利时退役军官维涅龙上校设计,1953年正式装备