图知网
搜索
首页
热门推荐
图片分类
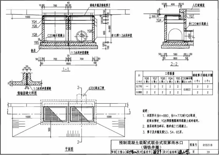
路边复合材料蓖雨水口大样图
下载原图
相关图片
05s518:雨水口
砖砌双蓖雨水口
图纸内容为带水封雨水口大样图,雨水口采用热镀锌雨水篦子,雨水口连接
带水封平篦双篦雨水口设计详图
雨水井水篦子设计cad施工图原创
矩形直线砖砌雨水检查井大样图标准图
为你推荐
wechat文字背景图.
原创伊能静和姐姐们穿睡衣开派对一起吃巧克力雪糕喝红酒
《唐人街探案3》唐仁4096x2304分辨率查看
什么是小儿急性喉炎
电脑的简笔画怎么画
神像流泪,天有异灾?
中国造59式57毫米高射炮
可爱女生动漫头像,干物妹小埋