图知网
搜索
首页
热门推荐
图片分类
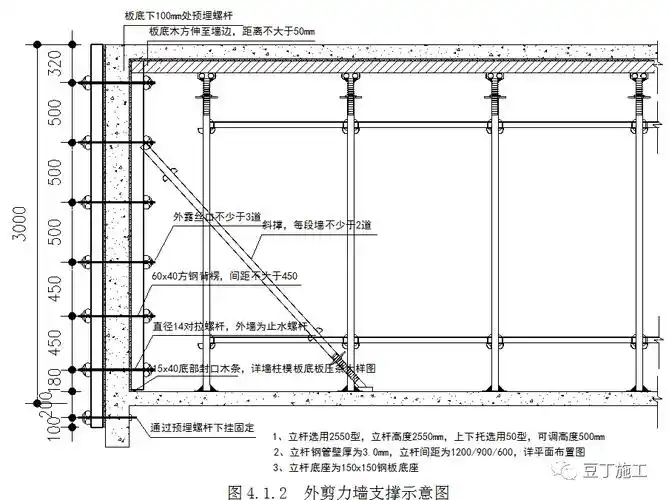
建筑施工承插型盘扣式脚手架安全技术规范jgj231201061240
下载原图
相关图片
新型盘扣式支架搭设施工技术要点总结!
厂家直销 盘扣式脚手架 菊花盘式脚手架 承插式脚手架 雷亚架
盘扣式钢管支架 盘扣式脚手架 60系列销售脚手架价格 **生产厂
全面解读推广盘扣式脚手架的必要性
盘扣式脚手架的搭设,施工,验收,看这篇就够了!_支撑架_检查_要求
北京盘扣式脚手架租赁的搭设(图1)
为你推荐
飞段介绍
自制详情看主页 王一博/语录壁纸/文字壁纸/壁纸
桥本爱实(橋本マナミ,1984— ),本名细川爱实,日本知名模特,演员,写真
手工辣条配方 辣条配方,有不懂的可以咨询我 卖爆一个城市的手工
16平米帜成二腐房效果图 一敢改两涪小房间图片
万仙山证件卡
日本福岛核辐射后惨象触目惊心
妈妈我爱你,宝宝我也爱你,永远.