图知网
搜索
首页
热门推荐
图片分类
可能小伙伴们会问,小编你凭啥得出上述尺寸?
下载原图
相关图片
07sd101-8:电力电缆井设计与安装
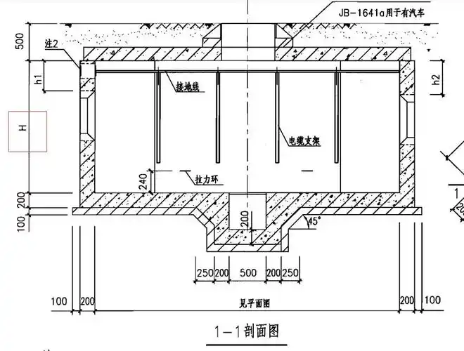
净尺寸
国标图集中的电缆手井是不是有问题?
电缆井问题
07sd101-8:电力电缆井设计与安装
0mx2.0m现浇混凝土三通电缆井外形图
为你推荐
1990天若有情之追梦人乖乖女就这么穿赛博朋克的香港夜景吴倩莲
南通市城市总体规划(2017-2035)
烤面包片
弥勒佛 白描佛像手绘底稿 涂色 唐卡描金 手绘铅笔线稿 助画佛像
休闲生活,舒适,惬意
一种多功能平衡车-爱企查
代画消防疏散图紧急逃生路线图平面图幼儿园.