图知网
搜索
首页
热门推荐
图片分类
施工现场洗车台
下载原图
相关图片
洗车池平面图
某建筑工地洗车槽建筑设计cad图纸
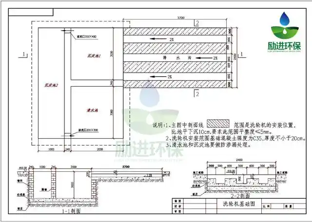
工地洗车机基础图
十套工地现场实用的洗车槽 沉淀池cad施工图纸
工地环保除尘洗轮机
十套工地现场实用的洗车槽 沉淀池cad施工图纸
为你推荐
家里的珍珠用完了就用米珠做了个球当花心没想到也可以#串珠#手工哈哈
最终高捷出面指证丁瑶为杀害帮主的主谋,山鸡不忍丁瑶被三联帮带回
头像框/公开厅/tt语音/边框素材/拜师看主页
5月18日,吉林市哈达湾幸福小区一女童坠楼
玉米大斑病
《未来的房子》
收录 茶香歌 发烧天地二级 关注 《西湾之夜》 西湾大桥,澳门观光塔
家庭装修通用主材料采购清单一览表