图知网
搜索
首页
热门推荐
图片分类
仿古长廊施工图
下载原图
相关图片
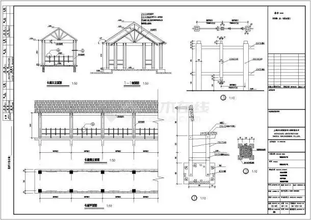
本工程为某公园长廊建筑cad施工详图,包含屋顶平面图,立面图,b-b剖面
[广东]文化长廊及永久舞台升级改造项目图纸
徽派钢结构文化长廊施工图
某古建筑长廊建筑cad设计施工图
本资料为:聊城市文化广场景观长廊水榭设计cad施工详图;内含:总平面图
古建筑联系长廊
为你推荐
文姓氏壁纸
初学者最易上手吉他谱
圣诞节rolife若来nanci囡茜十二生肖系列盲盒潮玩摆件不支持退货退款
高考出现的神仙卷面老师看后不忍扣分字迹的工整有多重要
飘窗窗帘简约不简单
blackpink 金智秀jisoo solo专辑《me》主打单曲《flower》预告照合集
丁野
清远| 游"北江小三峡"