图知网
搜索
首页
热门推荐
图片分类
石洞与玻璃面紧密衔接的通透住宅
下载原图
相关图片
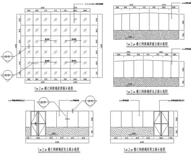
某玻璃阳光房详细结构施工图cad
石洞与玻璃面紧密衔接的通透住宅
玻璃住宅
美国连绵草色间的玻璃住宅
完美采光的89㎡,你和它只差一个落地玻璃窗户的距离
铝独立式太阳房/预制玻璃房子
为你推荐
天秤座
人生也就这样了(猫咪表情包)
混凝土浇筑振捣后进行抹面
谢谢-大丰收柑橘问诊在线平台
别知己智能简谱
包邮梅花螺丝刀 t20 t8t10t25t30星型带中孔米字内六角螺丝刀起子
可是邻居家比较奇葩,在卫生间砌的淋浴隔断墙掏洞做壁龛,这样做真的好
菌类蘑菇