图知网
搜索
首页
热门推荐
图片分类
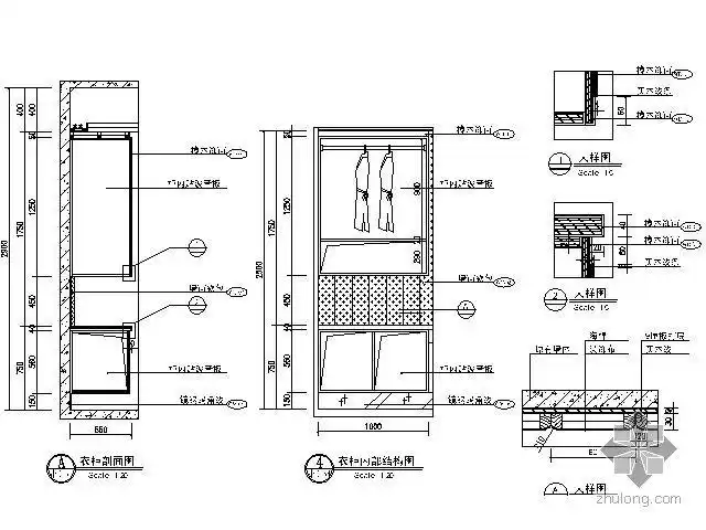
双门衣柜详图-室内节点详图-筑龙室内设计论坛
下载原图
相关图片
三款卧室衣柜详图-室内节点详图-筑龙室内设计论坛
图块/节点卧室小衣柜详图施工图下载【id:832235752】
小衣柜节点
一日一节点94衣柜大样节点图
衣柜详图
衣柜施工节点详图
为你推荐
黄子韬
钢笔画
眼睛绘画教程 #速写人间万象 #寻找小红书绘画大神 #眼睛画法
王者荣耀英雄海报壁纸——安琪拉,芈月
卡通瘫坐沙发上的猫表情图
苟芸慧抬头,浅笑,尽显女人味
明朝著名书法家刘宪章,楷书《陋室铭》欣赏,笔势苍劲,结字隽秀
加长款抽屉隔板 伸缩式抽屉隔板 家居用品