图知网
搜索
首页
热门推荐
图片分类
办公室装修设计
下载原图
相关图片
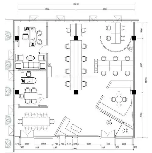
400平米办公室方案求新思路方向~面朝大海 求高手指点挑战 - 平面布局
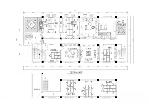
400平办公室装修效果-城起装修效果图
400平办公室设计
400平办公室装修效果-城起装修效果图
深圳南山西丽全精装办公室转租!空调家具
dly游泳馆400平米现代风格装修效果图
为你推荐
阳光男生专用头像.#值得你长期不换的头像 #孤独感拉满的头像 - 抖音
男士束装纹理烫.2023男生流行发型"束状纹理"时尚火爆全网 - 抖音
孩子换牙齿新长的牙齿是歪的或双排牙可能是家长没做好这些
18条适合纹身的英文短句
古风情头情侣仙气一左一右唯美古风动漫头像男女情侣霸气高冷
白曼巴:再多给哈登一点时间吧 我觉得相较于投篮他更应该组织-直播吧
北京育才学校初一2班团建活动掠影
纳尼亚传奇精装礼盒全7册世界三大魔幻巨著之一比肩魔