图知网
搜索
首页
热门推荐
图片分类
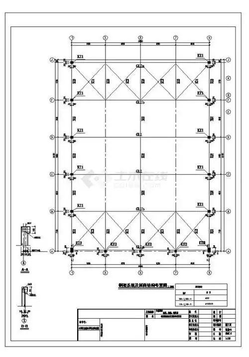
2屋面钢结构布置平面图
下载原图
相关图片
某生活基地食堂浴室锅炉房钢结构图
钢结构施工竟看不懂图纸?208页识图教程拿去,熟练掌握看图本领
管桁架结构详图-钢结构节点详图-筑龙结构设计论坛
钢结构平面布置图
厦门单跨门式刚架钢结构工程(9张)
钢结构识图~框架钢结构~平面布置图
为你推荐
感恩母亲节—临沂三河口小学2015级五年级一班和美中队
身高165体重190斤经常听别人说那么胖还不减肥我想说我这样很好100斤
魅力型男—朱亚文
"昭和最美歌姬"中森明菜:和梅艳芳谈同一个男友,57岁仍旧单身_日本
遵义市播州区苟坝红色旅游景区
珠穆朗玛日照金山
东南亚曾经的白人小朝廷投机冒险殖民剥削
公布了2017年英超最佳年度最佳球员的六人候选名单,他们分别是坎特