图知网
搜索
首页
热门推荐
图片分类
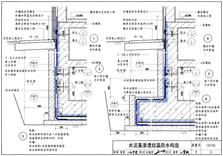
《地下工程防水技术规范》gb50108-20083,《地下建筑防水构造》10j301
下载原图
相关图片
10j301:地下建筑防水构造
10j301-地下建筑防水构造(含更正说明)
10j301-地下建筑防水构造(含更正说明)
10j301《地下建筑防水构造》更正说明
10j301:地下建筑防水构造
10j301-地下建筑防水构造(含更正说明)
为你推荐
娜扎刘以豪因戏生情?
猫和老鼠 汤姆猫
最丑的明星:十大中国最丑明星排名介绍(图)
【济南】2013年11月 玛莎拉蒂 总裁 2013款 5.3l 四驱总裁级 自动档
古装电视剧《扶摇》
自拍头像女可爱真实
狐妖小红娘:收养小妖怪成爱好?涂山第一智囊的世界,你不懂
钢笔字米字格练习字帖