图知网
搜索
首页
热门推荐
图片分类
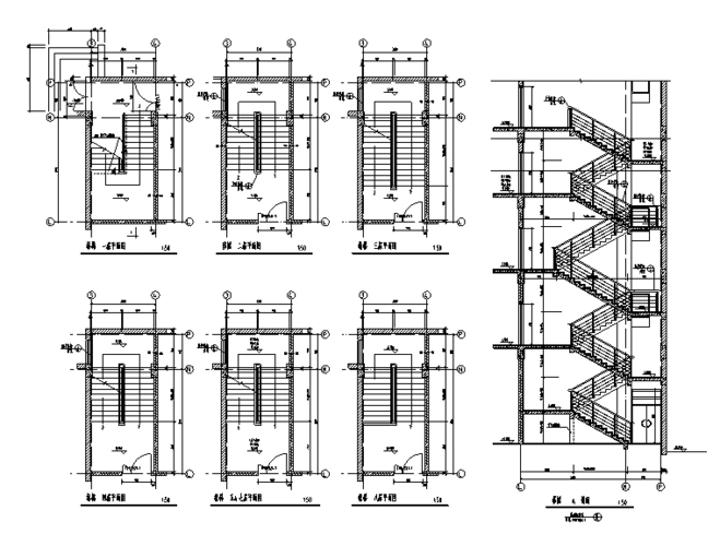
请专业人士帮我画出楼梯图.一定要专业.平面图,立面图
下载原图
相关图片
楼梯电梯坡道详图(cad)
楼梯详图识读(一) --转载
无忧文档 所有分类 工程科技 建筑/土木 楼梯详图第1页 下一页 你可能
1页) 你可能喜欢 办公楼平面图 建筑施工图 建筑识图_详图介绍 楼梯
楼梯详图
某高层住宅楼梯构造cad详图
为你推荐
加拿大省份地图
相比于"嘴硬"的汪小菲,大s的几任前男友,真的一个比一个优秀_陈建州
8梁钢筋计算规则ppt
黑色便携相机图片,高清图片
青山绿水第一人,大李将军,李思训作品欣赏
"情谊暖人心"——上犹消防救援大队指战员收获童心手绘感谢卡_手机
恐龙可穿幼儿园儿童玩具手工拼装制作纸壳纸板纸盒霸王龙 绿色小恐龙
长城汽车董事长,wey品牌创始人:魏建军