图知网
搜索
首页
热门推荐
图片分类
云南汉族长相有什么特点他们的o3m122型y染色体比例和南京的汉族接近
下载原图
相关图片
汉服人像(三)
汉族长相特征
汉服,汉族人的服饰
夜空中最亮的星 栎阳初级中学"最美栎中人"之身边
我的外貌是纯正汉族人的长相吗
真正的汉人是单眼皮那双眼皮的汉人是源于哪里炎黄子孙要知道
为你推荐
陈星旭最全童年照阳光大男孩的正确成长方式替换了清晰照片
车衣裳
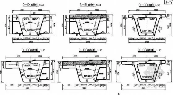
[湖北]30m装配式预应力混凝土箱梁通用图31张(斜交角15°)
冰雪奇缘爱莎安娜雪宝高清壁纸
古代诗人简笔画彩色画法步骤图片古代官人简笔画步骤图古代大臣简笔画
陶瓷鱼缸景德镇陶瓷家用水缸养金鱼缸荷花盆睡莲碗莲缸乌龟缸>800_800
故宫城墙建筑美
猜车标达人答案大全