图知网
搜索
首页
热门推荐
图片分类
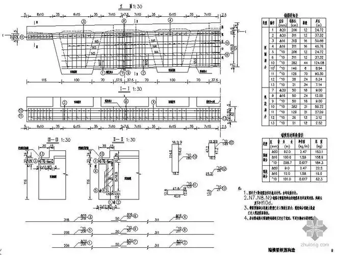
25m小箱梁普通钢筋图
下载原图
相关图片
箱梁横断面普通钢筋构造图
第一联箱梁预应力钢束构造图.jpg
30米新规范预应力混凝土箱梁设计图-路桥工程图纸-筑龙路桥市政论坛
预制箱梁施工图纸
箱梁普通钢筋构造
箱梁是什么形状的?请快快给答案
为你推荐
色彩构成–明度九调/明度九宫格/代画作品
动漫壁咚霸气情侣头像一人一张 什么叫壁咚 - 你问我答网
而在冷军的笔下,真正超高清的肖像作品其实并不多见,一方面是创作难度
吉他c d e f g a b 各调的详细和弦图
卡谱乐尔大连
请问这是自爆还是外力
水彩装饰画水粉画装饰画
摸#画画 #手绘 #霸王别姬