图知网
搜索
首页
热门推荐
图片分类
一个心烦意乱的女青年的画像尖叫照片
下载原图
相关图片
魔鬼猫表情-心烦意乱
心烦朋友圈配图 心情心烦意乱发说说配图_微信头像图片大全
我郁闷 ,我烦躁,总之心情不好 ,此时此刻真想做个泼妇,就想 - 抖音
桌上放着储蓄罐的年轻人心烦意乱
一个心烦意乱的笑脸, 疲倦的表情通过 emoji 表情
心烦意乱黑色艺术字
为你推荐
a站上那些毛茸茸的3d小动物,看起来太真实太可爱了吧!
人类的心脏素描
劳力士手表背面的文字,买了很多年,是很多年前一个很大的老板送的.
皮肤蝇蛆病
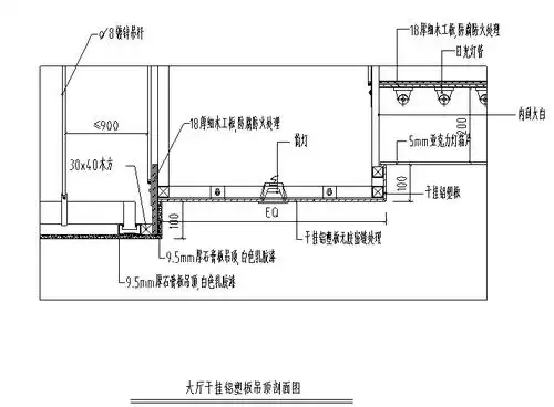
干挂铝塑板吊顶剖面图
张元英头像合集 自修|礼貌拿图喔 96
黄河魂黄土情
别墅窗套门套仿大理石配套包角包边背景墙外墙边框装饰线条转角已售