图知网
搜索
首页
热门推荐
图片分类
周扬波山水画写生作品展钢笔素描,临摹山水画铅笔画的素描山水画请问
下载原图
相关图片
素描山水画
山水画研究|弘仁:敢言天地是吾师!
素描画,江南铅笔画的素描山水画请问各位见得多吗?
素描山水画素描山水画图片大全集
清华美院胡一龙禅宗山水画专项研修课程招生简章
工笔线描山水画谱欣赏楼阁篇
为你推荐
我的身材我做主盘点演艺圈11位微胖女神胖瘦与否都是女神级人物
【育红微课堂】——美术活动《自制降落伞 》
我妻善逸小天使,又怂又帅!
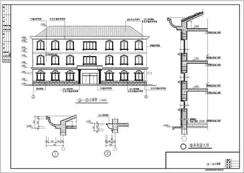
某单位三层小型办公楼建筑设计方案图
刘耀文动图
绝地枪王:大当家一改往日形象,跪求富商,竟想当他的儿媳妇-电视剧
唯美优雅女生头像高清好看的微信头像女生优雅气质唯美图片
4年后郑州人能坐上地铁4号线 洛阳明年修地铁