图知网
搜索
首页
热门推荐
图片分类
本田跨界踏板x-adv开始接受国内预定了 - 摩托车二手网
下载原图
相关图片
全面升级的大山羊2021款本田xadv实拍解析
本田新一代xadv更多细节展示
22年本田xadv750二手准新车价格不高 品牌: 本田 车型: x-adv750
另类中的主咖实拍本田xadv摩托车
本田xadv750静动态体验分享 honda dreamwing xadv750 跨界踏板第一车
本田xadv国内正式上市售158万起
为你推荐
林一
甜甜的可爱西瓜简笔画画法步骤
天花施工图室内吊顶结构图龙骨吊顶
清华大学新生已开学,宿舍条件首次曝光,网友:实名羡慕
我流产后第一次月经的第一天,下面就流出这个东西
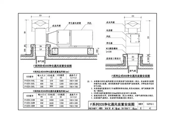
16j916-1:住宅排气道(一)
延中绿地
新疆"土"牛也能产出"雪花牛肉"