图知网
搜索
首页
热门推荐
图片分类
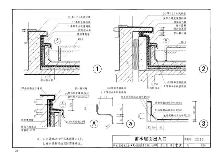
本页是12j201平屋面建筑构造第g4页:导光管采光系统构造节点本站图集
下载原图
相关图片
12j201平屋面建筑构造图集之种植屋面女儿墙落口
12j201平屋面建筑构造图集之蓄水屋面穿女儿墙水落口
请购买正版图书本页是12j201变形缝图集常用有保温女儿墙构造
20201214164237_23121
涂膜防水屋面檐沟_平屋面做法图集12j201a12_12j201图集a12_建筑图集
图集,12j201
为你推荐
柴犬头像_微信头像_我要个性网
来字的笔顺动画
婚礼晨袍女新娘伴娘团丝绸闺蜜结婚睡衣睡袍浴袍女长款定制伴手礼tx
摸摸头,不哭啦~ - 斗图表情包 - 装逼达人
沃尔沃s905万公里用车感受分享
燕牌缝纫机-价格:138元-se86685476-缝纫机-零售-7788画册网
厂家直销¢8快拆内六角万向节 多轴器万向节
外墙瓷砖效果图好吗值得做吗