图知网
搜索
首页
热门推荐
图片分类
达行书书法字典
下载原图
相关图片
达行书怎么写好看达字的行书书法写法达毛笔行书书法欣赏
达字的楷书怎么写,达的楷书书法 - 爱汉语网
达行书书法字典
达草书书法字典
达行书书法字典
达楷书书法字典
为你推荐
18岁时果断追求,石川佳纯再谈马龙_训练_球迷_乒乓
1080_2340竖版 竖屏
情人节卡片手绘粉色玫瑰花边框
简单吸管风筝手工制作图解教程
柯灵小学斗门校区新生开学指南
这个苗是我超市买的贝贝南瓜留的籽,发芽率不高,不知道是不是磷酸二氢
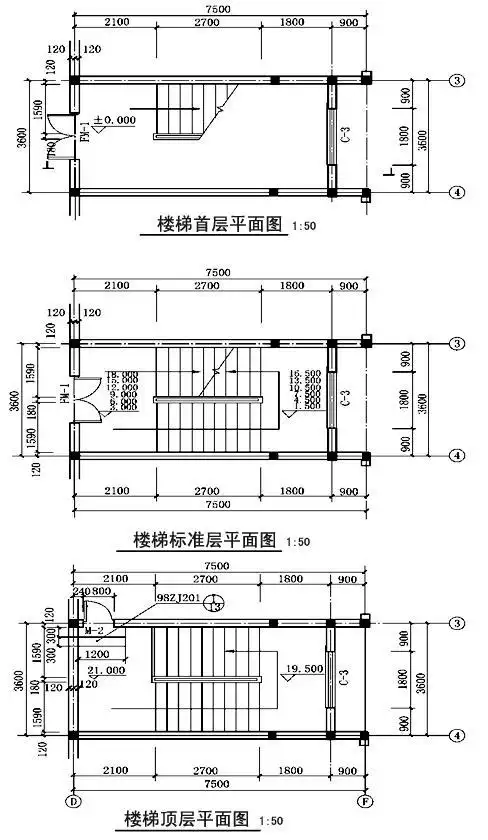
楼梯详图识读(一) --转载
2148光绪三十四年北洋造光绪元宝库平七钱二分银币一枚