图知网
搜索
首页
热门推荐
图片分类
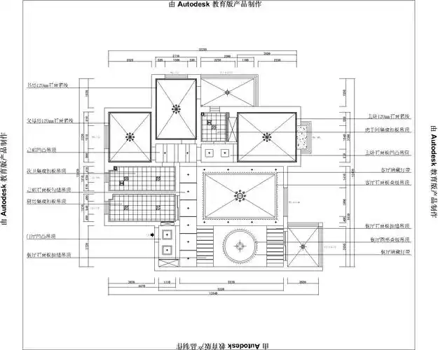
悬挂式60轻钢龙骨吊顶平面及工艺详图#施工图深化 #cad画 - 抖音
下载原图
相关图片
吊顶平面图
天花吊顶图
天花吊面施工图下载【id:1100691407】
天花吊顶铝扣板有哪些分类
现代风格样板房设计施工图(附效果图)
现代木饰面吊顶天花节点图施工图下载【id:257308896】
为你推荐
陈数|高伟光|摄影师|电影导演|实力派演员|奥林匹克运动会_网易订阅
她出道27年惊艳不少人,却成单亲妈妈,时隔多年公布小15岁的男友_江珊
北美冬青盆栽家庭怎么养 北美冬青盆栽的养殖方法
田馥甄晒背影照,米白色长裙马尾辫文艺气息十足_腾讯新闻
勋章图片
如何评价女明星刘亦菲?
手机奥维互动地图使用经验以及操作指南
明星营养师修贤抖音减脂饮食达人180w粉丝@鹿晨辉抖音健美运动员184w