图知网
搜索
首页
热门推荐
图片分类
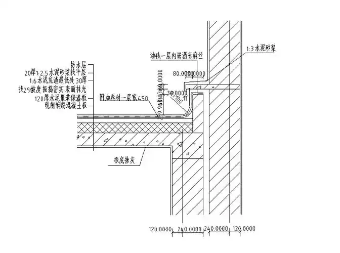
各种类型上人屋面防水节点构造大样图
下载原图
相关图片
上人屋面详图
屋面大样
女儿墙泛水防水做法 变形缝防水做法大样 屋面上人孔防水
屋面上人检修孔
上人屋面防水做法详图(渗耐空铺系统)
上人保温平屋面防水建筑做法
为你推荐
陈飞宇女友婚纱照曝光!疑似已婚!是陈飞宇站姐!还同过框!
沙雕头像
tv动画《浪客剑心 明治剑客浪漫谭》第一弹pv公开,预计2023年开播
新白发魔女传壁纸
冰城的三亚,城市中的巴马新海都半山温泉城
盐城市大丰区人民政府 红色遗址 敢为人先,这片土地亮过革命火种
戚容
新古典风格别墅壁炉背景墙装修效果图