图知网
搜索
首页
热门推荐
图片分类
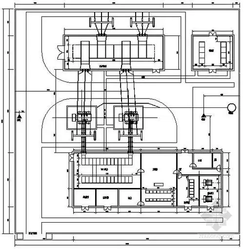
某变电所10kv典型设计图
下载原图
相关图片
变电站电气平面布置图
110kv变电站平面布置图
[分享]35kv变电站平面布置资料下载
某地小型110变电站电气结构设计图
110kv变电站典型设计图纸——35kv部分
泰安南开发区110kv变电站电气设计【含cad图纸 文档】
为你推荐
巴蜀中学十大校草周期,巴蜀中学现任校草
动漫闺蜜头像来了#超可爱#想要更多下期发第二弹~ - 抖音
魅丽饰季闺蜜手链三人学生召唤高颜值相吸儿童手环女感应小仙女磁铁新
《大时代》三十年后来看,依然非常精彩!
临摹的老房子速写,感觉好僵硬,看来需要多多写生练习
24k黄金玫瑰花999足金女礼物送七夕情人节3d硬金纯玫瑰花手链坠子
江淮跨越v7平地板驾驶室设计
龟派气功波龙珠美图特辑