图知网
搜索
首页
热门推荐
图片分类
家长送锦旗致敬教育人
下载原图
相关图片
胶州市大同小学用心教育暖童心 家长送两面锦旗表谢意
教师行为暖人心 家长感激送锦旗——通辽市特殊教育学校张秀玲老师获
长沙天童教育锦旗挂满墙责任肩上扛
家长送锦旗,感谢启智老师关怀情
校庆展播
峰翎学校获赠锦旗:一面锦旗,一份责任,一种鞭策
为你推荐
林志玲童年照片曝光 从小就是美人胚!【7】
二次元动漫美图精选银发少女专题
你的人生 你的秀场 即刻精彩
自定义关注的讲师 - 虎课网
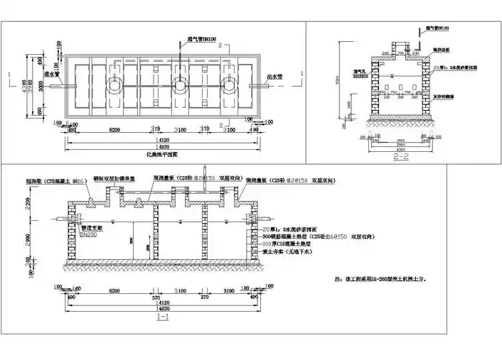
某地砖砌化粪池cad扩初图,可编辑(13号砖砌化粪池,无地下水,不过车
花影塔罗 星币10
11-13岁女大童发型会日常款就好了 把耳朵位置的头发梳在靠后的位置
巧克力色显白法式美甲