图知网
搜索
首页
热门推荐
图片分类
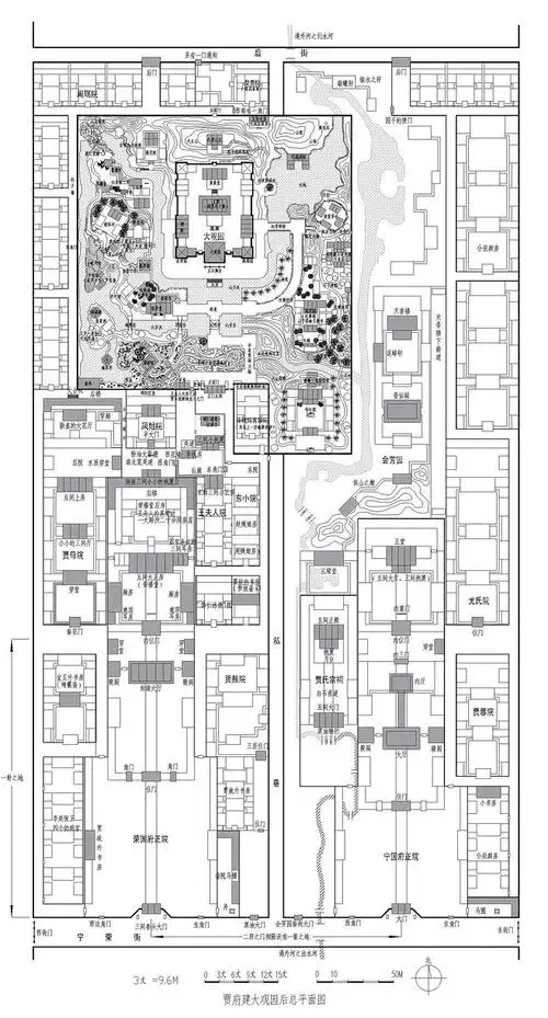
大家长期寻找的大观园原型在哪?
下载原图
相关图片
大观园
《红楼梦》中的大观园究竟在什么地方?
大观园总平面图
*"红楼梦"中大观园【五】 嘉荫堂. 栊翠庵. 怡红院. 滴翠亭
大观园竟是圆明园!再次劝张书才,远离北京伪曹雪芹故居!
求红楼梦大观园图
为你推荐
虽然钱枫胖过一段时间,但如今瘦下来的他,颜值回归巅峰状态!
充值送好礼穿苗衣时装骑金玉坐骑走黄金通道
保护近视爱护眼睛主题画
熊熊火焰探访土库曼斯坦地狱之火奇观组图
三相电机用.220v接触器,热继两地控制实物接线图
恐龙世界之可爱简单的喷火龙儿童卡通简笔画
技嘉b85主板接线图
森林