图知网
搜索
首页
热门推荐
图片分类
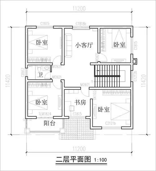
农村建造这款三层别墅长志气,开间不到11米,面积正合适不掉面子
下载原图
相关图片
这农村自建房子长11米宽10米如何把它设计得漂亮
这农村自建房子长11米宽10米如何把它设计得漂亮
11x11米农村建房图纸设计外形简洁施工造价低
11x10米方正农村小洋楼7卧4卫能住4代人3层400平30万建好
实拍11米*10米新农村自建别墅,3室1厅2书房,面积还是有些浪费了
两栋面宽11米多的农村自建房,好户型大家都是抢着建的
为你推荐
肖战初中毕业照曝光,素人时期旧照引热议
付辛博走红后:每年只拍2部戏,不缺吃穿,不需要赚太多钱太富有_颖儿
川剧《秋江》图片原创.
很有韩是风格的一款齐耳短发发型,很多人说女生短发单调很boy风,其实
花重金留学国外,回国找工作却不如本土大学生,背后的原因是啥?
简易电焊机制作两例
白细胞
5.jpg