图知网
搜索
首页
热门推荐
图片分类
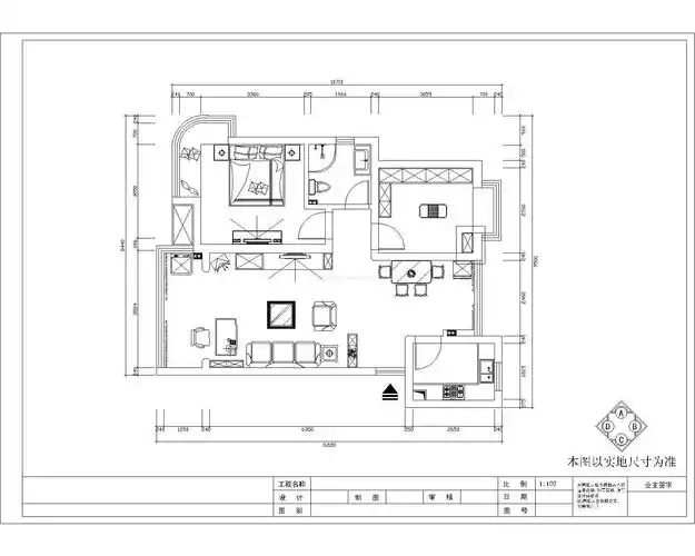
华润悦府两室一厅装修—平面户型布局
下载原图
相关图片
60平米小户型小两室一厅装修设计平面图
2016两室房子户型设计图
现代两室一厅平面图大全
2015二室一厅一卫户型图经典案例
宏江瀚苑89平两室一厅户型装修设计平面布局——郑州美巢装饰
格林雅居 两室一厅一卫 62㎡-2室1厅1卫-62.0㎡
为你推荐
杨千嬅演唱会舞台换装,舞伴竟敢把话筒拿下台
王光辉检察长深入基层调研新时代基层检察院建设情况
打羽毛球 - 美篇
懂你的发型师 羊毛卷#网红羊毛卷 - 抖音
60款 · 各式各样的小院围墙,美美哒
王者荣耀# 鲁班高清图片自取#王者荣耀小鲁班
惠普14s锐龙r73700u四核八
50个传统极致对称的回纹图形