图知网
搜索
首页
热门推荐
图片分类
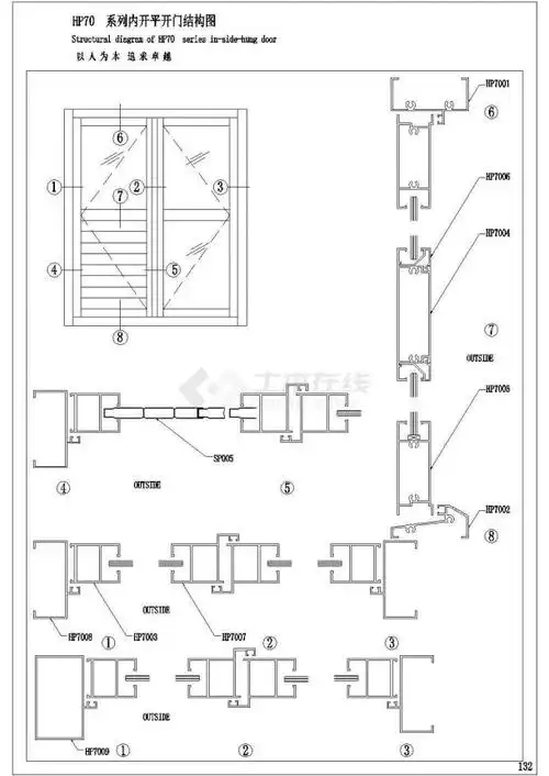
平开门配置
下载原图
相关图片
ry系列平开门
76m平开门节点图
4种开门方式,你见过但未必全懂其作用,有讲究!
某平开门cad完整设计图纸
一种单扇平开门的制作方法
木质平开门详图
为你推荐
《怦然心动》狄淇儿
▼江宏恩(图/艾迪升传播提供)
肖战同款李宁外套秋季2021情侣运动服迪士尼联名休闲西装afdr771
西红柿鸡蛋面片
铠甲勇士帝皇侠究极进化cg渲染图公开 进化过度的王者终极铠甲
多肉雪域多肉组合室内花卉 小天狗3cm左右 不含盆 紫玄月 单棵
唯美花朵橘色靓丽双层鲜花生日蛋糕图片
两会白朗县第十三届人民代表大会第五次会议召开第三次全体会议