图知网
搜索
首页
热门推荐
图片分类
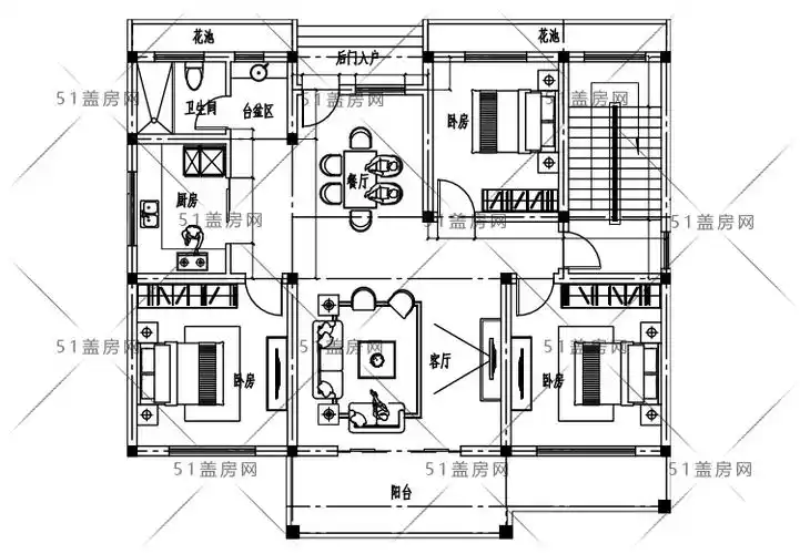
宅基地面宽10米,进深12-13米,建三层小别墅怎么设计?
下载原图
相关图片
面宽10.3米进深13米自建房怎样设计?_手机搜狐网
在农村长13米宽10米的土地上盖房该怎么设计
农村宅基地宽13米,进深10米,怎么设计二层半别墅?
面宽10.3米进深13米自建房怎样设计?
1010米农村建房怎么设计图纸方案
农村宅基地宽13米,进深10米,怎么设计二层半别墅?
为你推荐
女孩帅气露耳寸头发型图片 露耳寸头很迷人_女生发型_西子美发网
谁能给我发几张 吃fan喝酒的照片,,我要发空间里 制造一个喝酒的假象
半花臂纹身图案及手稿男女都适合的潮流设计
很治愈的小清新唯美风景头像图片
广场砖
饲养狗狗的"5大禁忌",你踩坑了吗?
糕材生(并州路店)-"附近一直没有卖中式糕点的小店,这也算弥补.
福州到厦门缩至1小时内!