图知网
搜索
首页
热门推荐
图片分类
除了直角梯形,等腰梯形还有哪些梯形?怎么画,(画图)
下载原图
相关图片
各种梯形平行四边形图
等腰梯形面积怎么算? 上底:4.8m 下底:11.
如图所示,等腰梯形
梯形狭长户型的合理分区户型改造之异形空间
在直角梯形aa1b1b中,作be⊥a1b1于e,则aa1eb是正方形, ∴aa1=be=1.
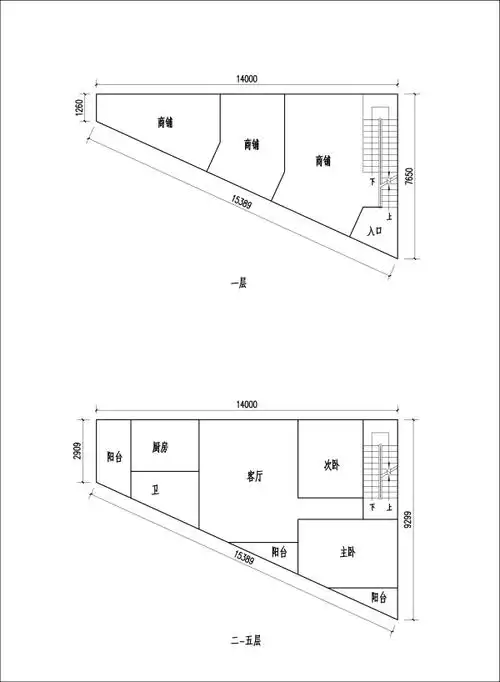
我有一梯形地块在乡镇准备建五层楼房找人做了设计大家看看是否合理
为你推荐
周星星情头逃学威龙
1979年,25岁的成龙,这一身肌肉简直太健壮了.
男生头像|血瞳黑暗系94 谁能拒绝这么酷帅的头像呢90,本期带来一
日本"女鬼子",到底有没有?
甜蜜浪漫情侣秀恩爱唯美意境小清新写真桌面壁纸(二)
555定时器简单的电路
传说之下
2020年年历-单张a4打印版年历(全年在一张a4上)