图知网
搜索
首页
热门推荐
图片分类
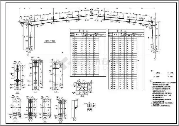
某游泳池采光顶大跨度钢结构方案图
下载原图
相关图片
[分享]钢结构厂房风帽结构施工图资料下载
轻钢结构
15米跨钢结构厂房结构施工图
大跨度钢屋架详图
某门式刚架轻型钢结构厂房结构设计施工图
36米跨单层钢结构厂房施工图纸
为你推荐
轻奢款时尚新娘造型自然清淡的底妆搭配华丽的头纱
东莞塘厦 # #我的纹身分享 #老传统花臂 ang62bu
钱币天堂·交易区详情·编号5757888 泰国1000泰铢一张
西瓜肥胖no掌握这些要点减脂期也能轻松吃瓜
0304真人漫改练习中国医生徐晔
东风天龙vl平顶牵引车 【上牌日期】22年6月 【排 - 抖音
定制照片打火机刻字 超薄防风创意diy打火机 送男友老公生日礼物
初音未来