图知网
搜索
首页
热门推荐
图片分类
公共厕所
下载原图
相关图片
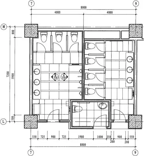
平面布置图
一层公共卫生间平面布置图 1:75-五星级酒店设计施工-图片
现代公共厕所装修cad平面图片_设计456装修效果图
房子装修平面设计图_起居室设计一起装修网装修效果图_卫生间装修设计
常见卫生间户型分区大全涵盖各种尺寸
8㎡主卫生间设计参考
为你推荐
春运最苦最累是母亲,要抱孩子扛行李,一路上还得照顾孩子
防弹少年团bts最新帅气海报图片壁纸
灵感来自古老的神秘符号维京字母和符文. 矢量.
正安县瑞濠幼儿园小三班5月主题活动(蛋的乐园)
沃柑专用膨大素果树施什么肥料好防裂防晒剂
电动机异地控制线路讲义ppt
龙logo
江苏 太仓#建筑摄影 #建筑设计 #aststudio #西交利物浦大学