图知网
搜索
首页
热门推荐
图片分类
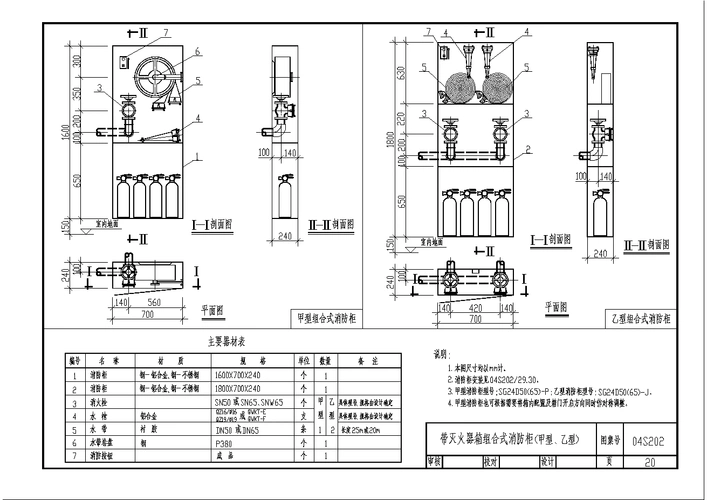
【消火栓安装图集cad版本】 落地型带灭火器箱组合式消防柜
下载原图
相关图片
消防试验栓尺寸有1米的吗?
楼顶的试验用的消防栓里要放水带吗?
一米八的消防箱进水口多高
消火栓箱的安装
【消火栓安装图集cad版本】 带灭火器箱组合式消防柜
带施救卷盘的消防箱内部构造
为你推荐
涛哥眼中的中国大陆十大最帅男星
可爱壁纸 cute 图源vb qq空间 侵删致歉
绘画参考#男生发型参考#二次元条漫推荐
有句老话说,婚姻是爱情的坟墓,对于焦恩俊和林千钰来说,还真就是这样.
刮痧后,及时用热毛巾或纸巾把油擦掉,刮痧部位不要吹冷风,不要碰冷水
yeezy350v2自创鞋带系法绝不74压脚背75
2022版标准中国地图在普京政权因战争失败而下台后,新的俄罗斯政府很
一拳超人:埼玉图片,4k高清动漫图片,娟娟壁纸