图知网
搜索
首页
热门推荐
图片分类
早有蜻蜓立上头
下载原图
相关图片
工笔蜻蜓
工笔草虫小品蜻蜓,纯手绘桌面小摆件,尺寸10寸相片大小,25
纯手绘图工笔画蜻蜓中国风古风荷花成品
【国画】工笔蜻蜓
【教程】李晓明画草虫| 红蜻蜓设色技法(含详细文字解析)
工笔花鸟国画工笔蜻蜓
为你推荐
易烊千玺优瑞家全球品牌代言人
王俊凯karrywang工作室
壁纸| 貂蝉(王者荣耀)@582期 今天の二十枚封面图集-动漫频道-手机
最爱的包包 ##celine#晒新包包凯旋门teen?
色相九宫格练习
"我是自理能手"——南浦大拇指幼儿园自理能力大赛
耿为华:宠妻15年被抛弃,离婚当天与女儿抱头痛哭,51岁仍单身1-度小视
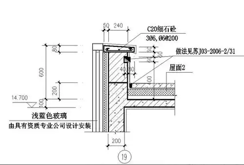
认真阅读墙身详图指出该女儿墙压顶外侧厚度为