图知网
搜索
首页
热门推荐
图片分类
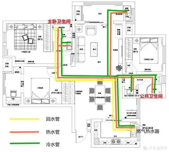
卫生间冷热水路布线图点赞去论坛首页看看86532装友帮你出谋划策去
下载原图
相关图片
关于卫生间冷热水管的安装 我们需要注意些啥?
图片老妈装修日记小卫生间水路diy
大家看看我这个卫生间的水箱和水管,水龙头g出水太小,无法忍受.
八,洗涤间
厨房的电路和厕所水管走的是横平竖直.卫生间洗手盆走的墙
一张图带你了解小循环水管走线
为你推荐
#薛之谦巡演官宣呼和浩特站##薛之谦官宣呼和浩特演唱会#
等风也等你
三,羊杂锅仔
第28话机器人女友之间的争吵
八十年代百花奖影后方舒
【作品材质】单幅尺寸136*34cm,宣纸 纯手绘 未装裱,古代四大美女!
三寸天堂原曲
酱香卤鸭子