图知网
搜索
首页
热门推荐
图片分类
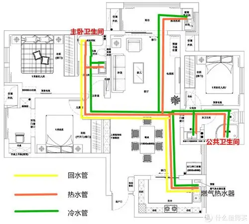
地源热泵管道系统有何优势
下载原图
相关图片
真实体验带你解答
低温阀门深冷试验技术研究ppt
自吸泵泵管道系统图
如图给水系统图如何区分干管及支管
【资料】武汉某商场暖通施工图(风冷热泵机组)
地暖锅炉和日常用热水怎么接管线,能给我一份管路图吗
为你推荐
最丑的反派演员,娶了个美丽的妻子,女儿的长相让人欣慰
高清超火的微信流行动漫闺蜜头像一对两张图片
自古以来龙凤并驾齐驱,为何西游中的龙一个能打的都没有?
【曝料】一夜之间,晋城六一老照片刷爆朋友圈!
湛江市爱周高级中学周兴楼
霍伊特hoyt焰硝30黑复合滑轮弓 打猎弓箭 射击射箭器材 箭馆箭道比赛
合肥复式楼装修:挑高空间的六大问题,十个对策,一篇搞定!
参考例图小海兔查看详情关联人设卡想要qq人小方插> !