图知网
搜索
首页
热门推荐
图片分类
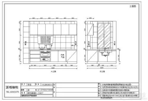
橱柜立面图
下载原图
相关图片
橱柜立面图.jpg
c立面图(橱柜设计)
欧派橱柜立面图.jpg
橱柜立面图及功能布置展示
厨房立面图
橱柜立面图
为你推荐
朱亚文一家三口生活照 妻子女儿齐上镜
小苹果微博头像变黑疑不满章子怡怀二胎?网友扒出真相,误会她了
跳水皇后伏明霞嫁大26岁富一代5年生三胎如今咋样了
清晨的阳光洒在窗外,唤醒了新的一天.早上好!
李香凝
武磊的西班牙人首秀,吸引了4000万新观众!
7861网络收图侵权立删pixivp站二次元服装教程动漫服装游戏人设女
看电影学党史红色电影进校园活动走进珠海市紫荆中学