图知网
搜索
首页
热门推荐
图片分类
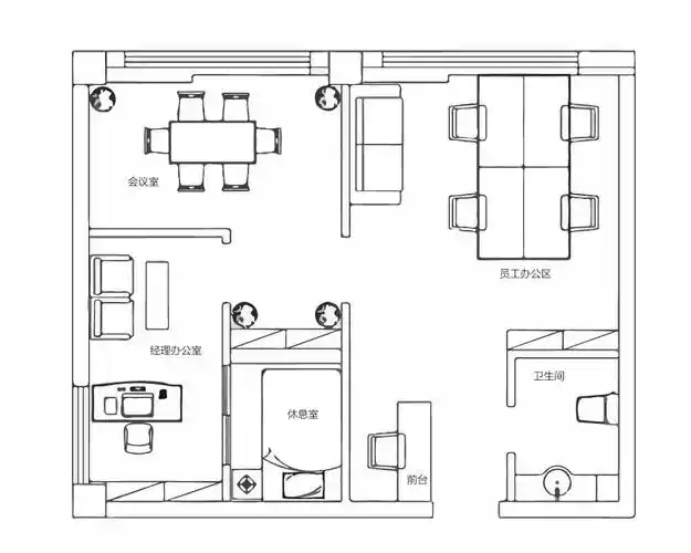
400平米办公室方案求新思路方向~面朝大海 求高手指点挑战 - 平面布局
下载原图
相关图片
图 办公室平面图样板案例网站提醒和声明本站为用户提供存储空间服务
200平办公室布局平面图
办公室设计的常用尺寸,应符合人体工程学与室内消防规范要求,各区域
平面布置 户型概况: 1层 / 1前台 1办公区 1文件区 1茶水区 4办公室
董事长办公室 & 周易文化研究
办公室简单装修平面图,图纸已有只需合理布局即可
为你推荐
微信有点污的聊天表情包 我被你们污到了
我的二哥二嫂:小伙过年都不回家,老师问他原因,他也不愿意说
李易峰寸头上演眼镜杀,儒雅帅气,尽显王者气概
上海偶遇撒贝宁带4岁女儿,何猷君带4岁儿子,两位萌娃容貌出众
第3期 盘点ins高颜值美女 高颜值可爱韩国妹子_网易订阅
杰士邦避孕套 温馨浮点3/12只 颗粒螺纹润滑安全套成人情趣用品
二维动画设计
美国国旗刺绣布贴外贸欧美风鹰旗星条旗眼镜服装徽章背胶绣花补丁