图知网
搜索
首页
热门推荐
图片分类
转换层(加强层)结构形式及设计要点
下载原图
相关图片
湖南长沙长沙找有实力的焊工班组,做钢结构转换层,50*50角
中空钢结构转换层完成50%
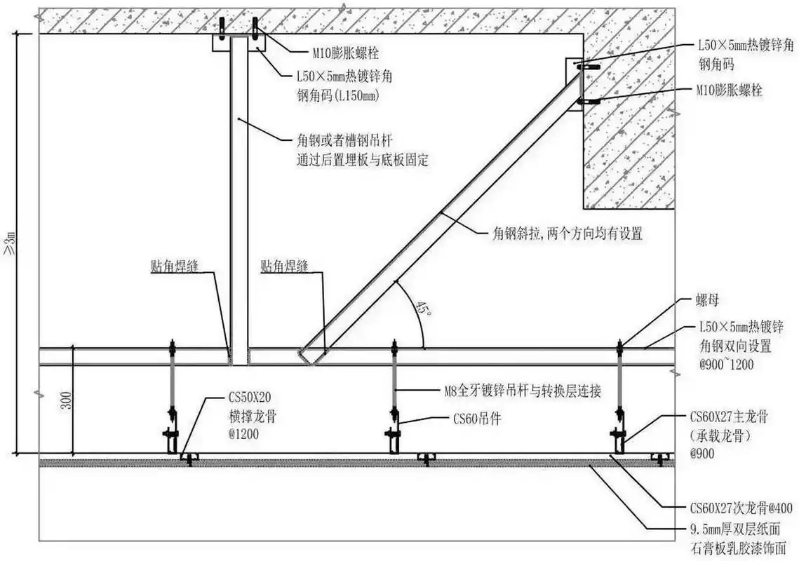
吊顶内型钢转换层示意图
03,转换层的标准做法: 03-102钢架转换层 安装注意事项: ① 转换层
转换层(加强层)结构形式及设计要点
吊顶钢结构转换层cad节点
为你推荐
男生头发自然卷留什么发型 理发师建议剪这3款
《名字变形》
仅需1929元,oppo reno 11再降价,黑厂杀疯了_手机_什么值得买
【威扬推荐】谭艳原创歌曲---《突然的幸福》
阿根廷传奇!(附带马拉多纳世界杯经典进球高清影像)
火影尾兽图
【风师cos 正片】#天官赐福#喜劳扩95"风师大… - 半次元 - acg爱好
湖南张家界天门山的玻璃栈道.图/ic photo