图知网
搜索
首页
热门推荐
图片分类
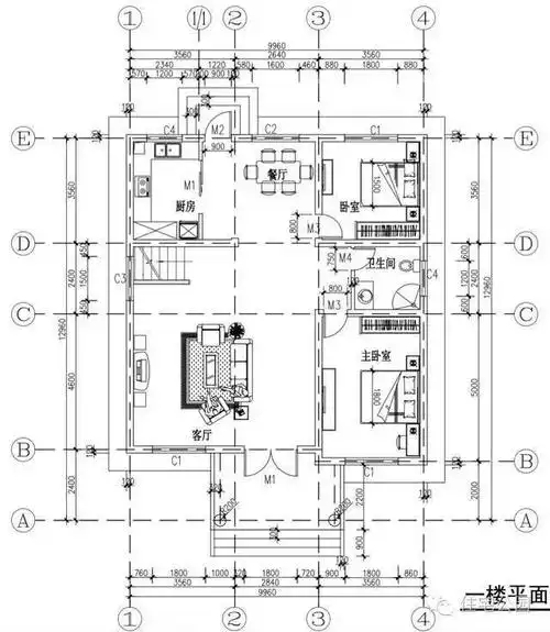
10×13米这种宅基地尺寸,适合建怎样的户型?
下载原图
相关图片
在农村长13米,宽10米的土地上盖房,该怎么设计? - 石塘网
在农村长13米,宽10米的土地上盖房,该怎么设计? - 石塘网
在农村长13米,宽10米的土地上盖房,该怎么设计? - 石塘网
在农村地区,如何在13米长,10米宽的土地上做别墅设计? -别墅设计-乡村
10×13米这种宅基地尺寸,适合建怎样的户型?
新农村自建房10米x13米 实用接地气户型 含平面图
为你推荐
罕见的民国老照片:图1是街头执行任务的女警察,图4让人唏嘘不已
邓超发文:这野孩子咋没人管啊 ,得知真相后令人哭笑不得_吴京_谢楠来
一份详细的健身餐搭配,一日六餐,让你增肌不增脂
下面一起来我们的牙齿分类吧!爸爸妈妈赶紧和宝贝们一起学习起来吧
小花店的秋日鲜花陈列.针垫,绣球,马蹄莲,卡布奇诺,郁金香, - 抖音
伤感男生头像落寞孤单
700名学生拼"爱心方阵"表白祖国 献礼新中国70华诞_视频_中宏网
厚涂练习