图知网
搜索
首页
热门推荐
图片分类
绿牛拼完#乐高 #兰博基尼#男孩玩具 #积木 #汽车模型 # - 抖音
下载原图
相关图片
乐高大赏 篇十六:要想生活过得去,还得来点绿90乐高42115兰博基尼
乐高兰博基尼
两遍说明书都没找到这个灰色的应该在哪求助万能的你们#乐高兰博基尼
lego #乐高机械组 #兰博基尼
乐高兰博基尼
lego乐高积木拼砌说明书30476,快乐海龟(年份2017)安装指南.pdf
为你推荐
朋友合照|超实用多人拍照姿势分享 .
当你老了,回顾一生,就会发觉:什么时候出国读书
新氧,新氧网
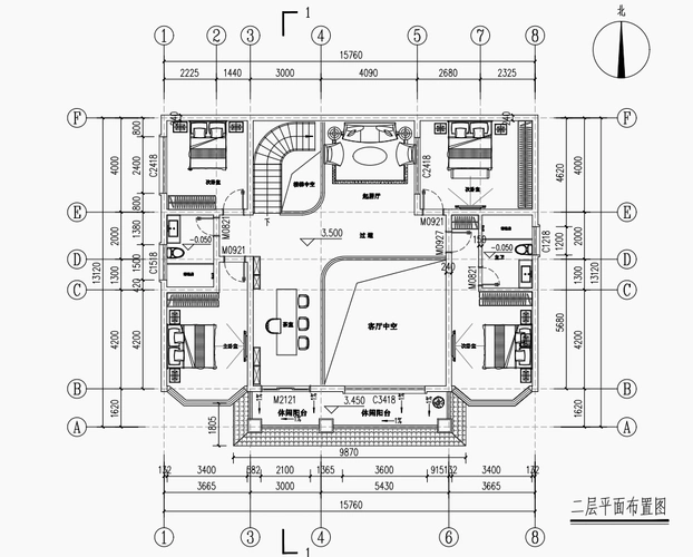
欧式二层别墅设计图平面图
梦见打杀老鼠
马大帅赵本山太过分了,有土豪喜欢玉芬,竟还责怪起玉芬来
全国保存最完整的太平天国王府"忠王府"
10张比较漂亮的管理系统用户登录界面_ui设计_ui_ui教程-uimaker-专注