图知网
搜索
首页
热门推荐
图片分类
窗帘万万不要装罗马杆了,如今都盛行这样装,太聪明了!
下载原图
相关图片
窗帘到底怎么选要装罗马杆还是轨道
没有装窗帘盒,罗马杆轨道应该怎么装?
窗帘选好了,应该用什么方式安装,选择滑轨还是罗马杆呢?
罗马杆是安装其他窗帘时一起买的当时也不懂,以为都一样装上那一刻,真
窗帘盒就是比罗马杆好用.#卧室 - 抖音
罗马杆和滑道哪个跟窗帘更配?听老阿姨一说,后悔装错了!
为你推荐
我们相爱吧 第二季 官方剧照
谭松韵 不迟不早时间刚刚好~听闻8月31日,9月7日都能见面哦
闺蜜头像可爱闺蜜头像q版双人
低领内搭77丝巾,很难不盯着看,身材比例太完美了 #王一博好贵
超萌恐大嘴表情包上架啦
2020流行女生半扎式丸子头烫发发型 慵懒清新文艺范(2)
新三国#新三国庞统献计
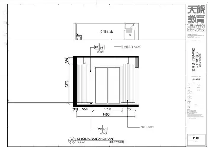
完成客餐厅立面图