图知网
搜索
首页
热门推荐
图片分类
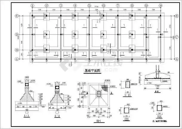
[施工图]二层砖混结构住宅楼结构施工图vip
下载原图
相关图片
砖混结构的构造柱到底承重吗?
砖混结构示意图
一套砖混结构图,一般顺序是
砖混结构住宅楼结构施工图(二层条形基础)二层砌体结构独立基础住宅楼
某二层带阁楼砖混结构别墅建筑结构图
[内蒙古]六层砖混结构塔式住宅楼建筑施工图(含商业及效果图)
为你推荐
可爱的快乐的小狮子在一个卡通风格的手工皇冠.
今日份情侣头像(一)
离别开出花钢琴谱简易版-就是南方凯
仙女魔法棒玩具女孩宝宝魔法杖公主发光手杖美少女闪光小魔仙玩具
女生真实自拍头像 高清好看的女生自拍真人头像漂亮图片_女生头像
零食花束包装纸材料包草莓棒棒糖花束diy手工自制抖音网红养乐多
p data-id="go0hqdni81">夜叉乐队,中国内地乐队,由主唱胡松,吉他
宋祖儿饰演的小乔这不是国色天香这是什么?