图知网
搜索
首页
热门推荐
图片分类
一半浮华一半叹息一本书带你领略别样的威尼斯变迁美景
下载原图
相关图片
欧洲游之意大利威尼斯水城.
浮在水上的城市-威尼斯
当今世界那些正在闹独立的地区之十二:威尼斯_手机搜狐网
威尼斯
威尼斯 (venice) _ 忧郁与浪漫调和出的旖旎波光
散文品读|矢岛翠【日本】:威尼斯的市街
为你推荐
全新帕拉梅拉正式上市!动力升级|新车|轮毂|保时捷|上海车展_网易订阅
原创ipad手绘猫咪头像花园里的布偶猫
上海雷允尚 雷氏十全大补酒
点亮青春,逐梦前行 | 绵阳南山中学实验学校隆重举行2023高考百日誓师
美国直升机在韩国坠毁
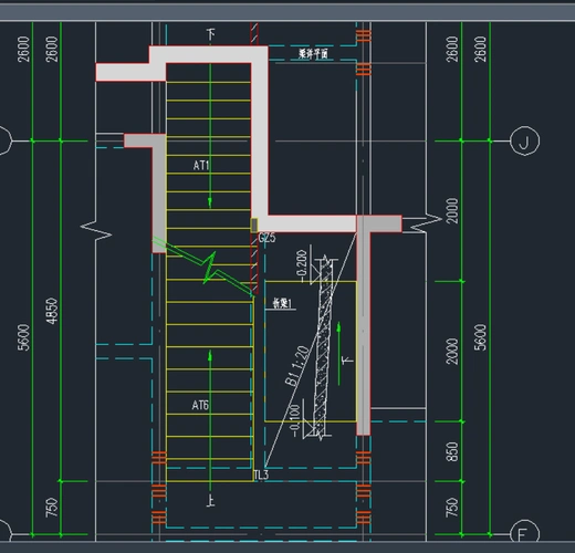
586被赞:148去看楼梯剖面,别单独看平面2021-10-09 16:16:45自强不息
泰迪小可乐微信表情
王者荣耀s36赛季对抗路新篇章:空间之灵引领变革_英雄_调整_经济