图知网
搜索
首页
热门推荐
图片分类
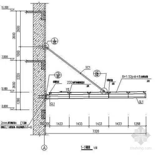
医院钢结构雨棚设计图纸雨棚cad施工图下载
下载原图
相关图片
请问一下各位老师这个雨棚是从哪个方向投影的从上往下看还是从旁边
钢化玻璃雨棚节点施工图下载
雨棚结构平面布置图,雨棚玻璃分格平面布置图,剖面图,节点详图共两张
内容简介 雨棚玻璃平面图,雨棚钢结构平面图,雨棚正立面图,雨棚剖面图
某钢结构雨棚节点详图
[资料]钢结构转角雨棚,连续雨棚做法 玻璃顶铝板包边 节点详图 施工图
为你推荐
【壁纸】640*1138丨后来的我们高清插画壁纸
清明节将至,这些祭祀禁忌你不得不知!
刺客伍六七赤牙绘画过程
布鲁特斯石膏
手绘人物卡通小人 卡通png素材透明免抠图片-装饰效果
患有静脉曲张的肥胖妇女的腿(超重肥胖)
象牙手串把玩会越来越润吗?
顺丰发货甲康诺凤仙花抑菌液套装灰指甲专用去除增厚灰甲抑菌液疆寿堂