图知网
搜索
首页
热门推荐
图片分类
二室一书房cad设计图分享,这才是室内装修该有的样子!
下载原图
相关图片
分享cad室内家居平面施工图资料下载
分享四室两厅室内施工图cad资料下载
图纸格式:jpg,cad2000 包含图片:效果图 包含: 总平面布置图
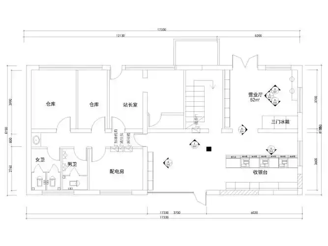
[浙江]126㎡易捷便利店室内装修设计施工图
二居室施工图设计现代简约风格住宅设计家装cad平面布置图家装室内
泉州室内设计培训师教你室内装修用cad画结构图的方法
为你推荐
甜蜜蜜:沙溢像孙俪表白,如果没有邓超你会接受我吗?孙俪沉默
2019-09-09~2019-09-12
个性壁纸图片锁屏个性壁纸手机图片霸气个性壁纸手机图片带字
有图慎入.
中国218岁女童身高体重标准差单位曲线图
积极应对宁波市轻轨1号线选线及南车项目初步选址意向对五乡城镇空间
夏季必备 文胸硅胶肩带 水晶透明肩带 隐形肩带 不粘皮肤宽1.5cm
卢福财黄恩华喻晓社叶仁荪