图知网
搜索
首页
热门推荐
图片分类
红糖麻薯芋圆77奶茶
下载原图
相关图片
麻薯芋圆奶茶
芋圆是剔透的,麻薯是软糯的,两种调配吸起来是超满足的.
自制麻薯芋圆奶茶04
黄百吉芋泥冷冻馅料淡奶油奶茶店专用配料芋圆麻薯紫薯烘焙 【芋泥5kg
建议女孩子把奶茶都换成芋圆鲜奶麻薯,真的真的太美味了!
芋圆奶茶
为你推荐
少女心
束脚运动裤男秋季新款青少年男装休闲裤长裤宽松修身跑步男士裤子
【反对怀远整体划区】蚌埠发展一定要立足长远,规划科学.
新鲜松茸
杨超越游泳池大片,提前快进到夏天的重紫
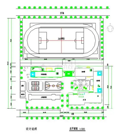
某中学学校建筑cad施工设计图纸
奥迪q2l优惠高达718万欢迎到店赏鉴
我们班大合唱要唱《北京东路的日子》我是指挥,新手,我需要一个专业的