图知网
搜索
首页
热门推荐
图片分类
91个明框玻璃幕墙节点详图
下载原图
相关图片
明框玻璃幕墙纵剖标准节点图
凹型精制钢全明框玻璃幕墙节点设计
多种明框玻璃幕墙节点图
江苏世博玻璃幕墙节点图汇总
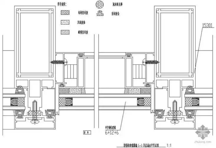
某明框玻璃幕墙节点构造详图(一)(开启扇水平图)
明框玻璃幕墙cad节点大样图
为你推荐
240_320竖版 竖屏gif 动态图 动图
黑白动物插画
卡通问号,卡通问号
海贼王动画:索隆与路飞终相遇,索隆见闻色霸气镇场
龙的传人简谱乐谱
吾王阿尔托莉雅#fate# #ai绘画# #二次元美图
胶管产地河北景县商品属性商品属性视频展示商品描述价格说明订购说明
圣地亚哥天主教教堂的内部视图, 位于意大利卢卡市